L'AGENCE Agence
Télécharger la fiche

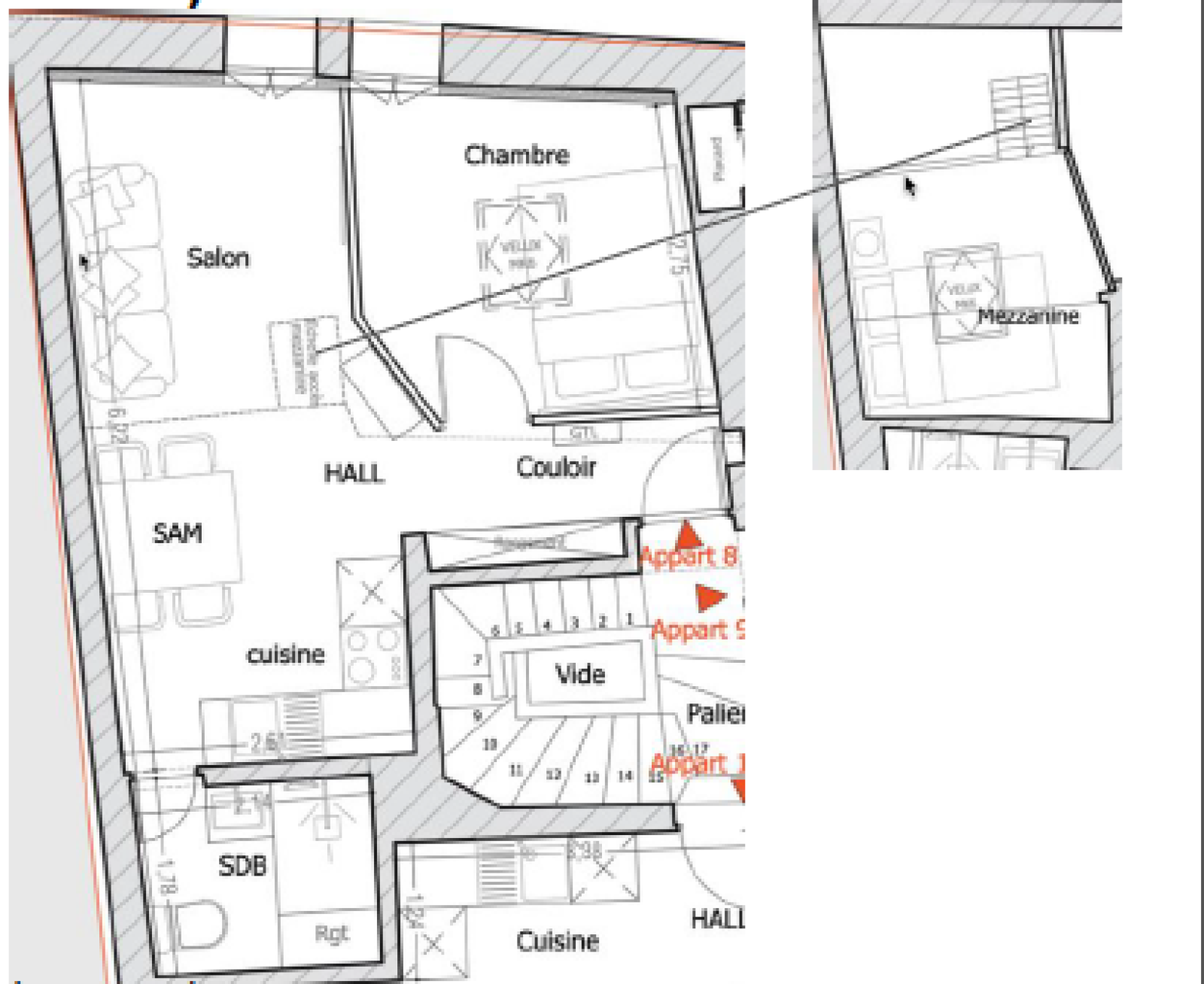
Appartement 3 pièce(s) 2 chambre(s) 37 m²

Aubagne (13400)
90 000 € Référence 42

A propos de ce bien

L'AGENCE vous présente sur la commune d'Aubagne,

À vendre, T2/3 à rénover entièrement situé en deuxième étage d’un immeuble, en plein centre-ville d’Aubagne. Cet appartement représente une excellente opportunité d’investissement ou un premier achat idéal, dans un secteur vivant et recherché, à proximité immédiate des commerces, des transports et de toutes les commodités.

L'appartement nécessite une rénovation complète (cuisine, salle d’eau, WC, sols, peintures), ce qui permettra à son futur propriétaire de le repenser à son goût et de valoriser pleinement son potentiel.

L’immeuble, quant à lui, est en parfait état : la façade, la toiture, les parties communes, ainsi que la porte d’entrée de l’immeuble et la porte de l’appartement sont neuves. Le bien dispose également d’une climatisation réversible neuve, un atout non négligeable pour le confort quotidien.

Proposé au prix attractif de 90 000 € HAI (charges vendeurs), cet appartement est une opportunité rare à Aubagne. À visiter sans tarder !

Mandat n°42

DPE : VIERGE

Co-propriété : 11 lots

Caractéristiques de ce bien

  • Surface 37 m²
  • carrez 37 m²
  • 2 chambre(s)
  • 1 salle(s) de bain
  • construit en 1835
  • kitchenette (semi-équipée)
  • Chauffage individuel : air pulsé (climatisation)
  • exposition Nord
  • 3 côté(s) mitoyen(s)
  • 2ème étage
  • 3 étage(s)
  • vue Sur rue

Diagnostics énergétiques

DPE
GES
DPE vierge

Informations financières

Prix de vente honoraires TTC inclus 90 000 €

Informations de copropriété

Copropriété Oui
Lot n° 8
Nombre de lots 11
Plan de sauvegarde Non
Statut du syndic Pas de procédure en cours

Calcul des mensualités

* Champs obligatoires